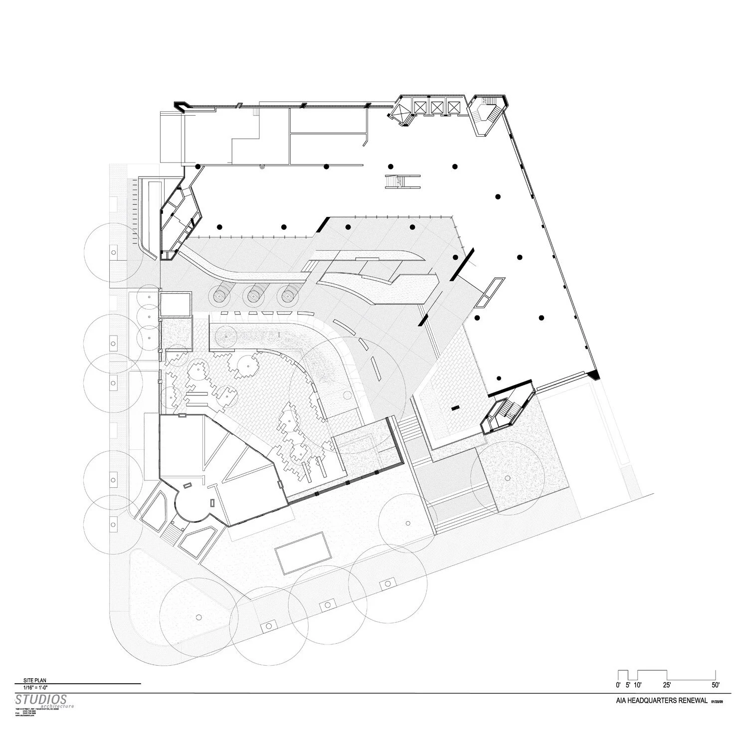
AIA Headquarters Renewal | Washington, D.C.
The renewal of the American Institute of Architects Headquarters in Washington, D.C., is predicated upon a comprehensive ecological and social plan to achieve carbon neutrality by 2030. The public space aims to unify the historic AIA Headquarters, the Octagon House (an adjacent historic building), and the garden shared between the two into a campus-like environment that extends into and encompasses the surrounding streetscape. This experiential and highly visible strategy for the public realm will increase educational opportunities by reinforcing the AIA Headquarters' larger sustainability mission.
In keeping with the AIA's goal of becoming carbon neutral by 2030, the public realm concept reflects AIA's core tenets for sustainability, visual and physical accessibility, education, and unique identity. Under these principles, the landscape becomes an interactive interface for providing first-hand knowledge about the importance of green design and, in particular, how certain technologies—daylighting, passive solar strategies, natural ventilation, and renewable energy sources such as PV panels, wind turbines, or geothermal systems—might be incorporated into private own homes and gardens.
Client: American Institute of Architects
Architect: Studios Architecture
Project Size: 35,500 Sq. Ft.
Status: Conceptual Design Completed
click below for slide show of additional images
Landworks Studio's proposal champions the educational and ecological functions of the urban landscape through the strategic insertion of an environmental program into the existing courtyard. It will optimize the interface between proposed and existing elements using biotechnologies such as bioretention swales and constructed wetlands to treat stormwater and greywater. Additionally, the limited site area requires vertical plantings that take advantage of existing building walls through integrated living systems. Given their orientation and height, these living walls are experiential and highly visible. Thus, the living walls encourage interactive engagement between users and landscape and are therefore an ideal tool for expanding the educational aims of the AIA.
